人気の昭和小学校学区域!建築条件なしの売地です。

人気の昭和小学校学区域!建築条件なしの売地です。
本駒込5丁目土地(57.11)
-
13500万円/管理費:円
3LDK/57.11㎡
修繕積立金 : 円
築年月 : 2026年05月
-
- 学区
-
昭和小学校
第九中学校
-
- 交通
- 山手線 - 駒込駅 徒歩9分南北線 - 駒込駅 徒歩9分三田線 - 千石駅 徒歩9分南北線 - 本駒込駅 徒歩11分
物件間取り

- エレベーター
- 駐輪場
- ゴミ置き場
- ペット相談
- バイク置き場
- 宅配ボックス
- 駐車場
- オートロック
住宅ローンシュミレーター
物件価格
13500万円
月々
0
円のご返済
金利
0.47%
頭金
0万円
ボーナス
0万円
返済期間
35年
※シュミレーションの結果はあくまで目安であり、将来の金利動向により実際のご返済がシュミレーション結果と異なる場合がございます。
実際に発生する月々のお支払い額は金融機関までご相談ください。
|
|
春日通支店森 秀一 取材記事 |
文京区本駒込5丁目に位置する、限定1区画の売地のご紹介です。JR山手線・東京メトロ南北線「駒込」駅徒歩9分、都営三田線「千石」駅徒歩9分、東京メトロ南北線「本駒込」駅徒歩11分と、3駅3路線が利用可能な交通利便性の高い立地。都心へのアクセスに優れながら、周辺は落ち着いた住宅街が広がる人気エリアです。
土地面積は約57.11㎡(約17.27坪)。北東側約5.9mの公道に面した整形地で、開放感のある建物プランが検討可能です。建築条件はなく、お好きなハウスメーカーや工務店にて自由設計が可能。ライフスタイルやご家族構成に合わせた理想の住まいづくりが実現できます。
周辺には六義園や小石川植物園などの緑豊かな庭園をはじめ、教育施設や生活利便施設が徒歩圏内に揃い、文京区ならではの落ち着いた住環境が魅力。スーパーや商業施設も近く、日々の買い物にも便利な立地です。
歴史と緑に包まれた本駒込エリアで、利便性と住環境を兼ね備えた貴重な売地です。自由設計で理想の住まいを実現できるこの機会を、ぜひご検討ください。
物件外観・共用部分

今回ご紹介の土地は本駒込5丁目の住宅街の敷地です。
建築条件などございませんのでお好きなハウスメーカーにて建築可能です。
土地面積:約17.27坪(57.11㎡)となっております。
【引渡し】
引渡し:即可 現況:更地
権利:所有権
【接道状況】
北東側公道 幅員:約5.9m 接道間口:約8.1m
【法令制限】
都市計画:市街化区域
用途地域:第一種住居地域
建ぺい率:60% 容積率 :300%
防火指定:準防火地域
【交通】
都営三田線【千石】駅徒歩9分
JR山手線・東京メトロ南北線【駒込】駅徒歩9分
東京メトロ南北線【本駒込】駅徒歩11分

前面道路は北東側で幅員約5.9m

整形地になります。


第一種住居地域になりますので3階建てが建築可能!


敷地奥側からの写真です。
周辺はマンションなどもございますが静かな環境です。

都市ガス、公営水道、本下水とライフラインも整っております。
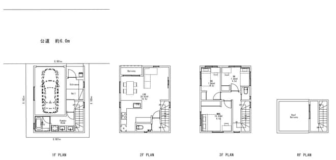
参考プラン

今回は駐車スペース付きの3階建てでルーフバルコニー付きのプランです。
1階部分には水回りを集約させており朝の忙しい時間帯に嬉しい洗面台は2セットプラン!
2階部分じゃL字型のカウンターキッチンのある約18.9帖のリビングダイニングキッチンにバルコニー付き!
3階には居室が3部屋ございます!
本駒込5丁目土地(57.11)
-
- 価格
- 13500万円
-
- 管理費
- 円
-
- 修繕積立金
- 円
-
- 間取り/面積
- 3LDK/57.11㎡
-
- 築年月
- 2026年05月
-
- 交通
- 山手線-駒込駅 徒歩9分南北線-駒込駅 徒歩9分三田線-千石駅 徒歩9分南北線-本駒込駅 徒歩11分

物件詳細
-
- 物件名
- 本駒込5丁目土地(57.11)
- 所在地
- 東京都文京区本駒込5丁目2-13
-
- 交通
- 山手線 - 駒込駅 徒歩9分南北線 - 駒込駅 徒歩9分三田線 - 千石駅 徒歩9分南北線 - 本駒込駅 徒歩11分
-
- 物件種別
- 土地
- 現況
- 売出中(空室)
部屋情報
-
- 価格
- 13500万円
-
- 管理費
- 円
- 修繕積立金
- 円
-
- 間取
- 3LDK
- 面積
- 57.11㎡
-
- 部屋階数
- 3階
- 方位
- 北東
建築物情報
-
- 建物構造
- 木造
- 建物階数
- 3階建
-
- 部屋階数
- 本駒込5丁目土地(57.11)
- 学区
-
昭和小学校
第九中学校
-
- 設備・条件
- 2人入居可,居住,法人契約相談,ペット相談,事務所相談,楽器相談可
-
- 物件番号
- c16459
- 取引態様
- 媒介
-
- 最終更新日
- 2026年03月16日
| 図面 | 価格 | 管理費 | 修繕積立金 | 方位 | 階層 | 間取り | 専有面積 | お気に入り |
|---|---|---|---|---|---|---|---|---|
![]() |
13500万円 | 円 | 円 | 北東 | 3階 | 3LDK | 57.11㎡ |


