湯島ハイタウンA棟

湯島ハイタウンA棟
湯島ハイタウンA棟 14階
-
ご成約済み/管理費:ー
2LDK/64.85㎡
修繕積立金 : ー
築年月 : 1969年12月
-
- 学区
-
湯島小学校
本郷台中学校
-
- 交通
- 千代田線 - 湯島駅 徒歩2分大江戸線 - 上野御徒町駅 徒歩5分山手線 - 御徒町駅 徒歩7分
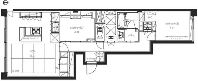
物件間取り

- エレベーター
- 駐輪場
- ゴミ置き場
- ペット相談
- バイク置き場
- 宅配ボックス
- 駐車場
- オートロック
|
|
本郷三丁目駅前支店瓦 海 取材記事 |
東京メトロ千代田線「湯島」駅から徒歩2分という恵まれた立地に佇む、ヴィンテージマンション「湯島ハイタウンA棟」をご紹介します。今回ご紹介するのは、新規リノベーション済みの14階部分、専有面積64.85㎡の2LDK。高層階ならではの眺望と、機能的かつ洗練された内装が魅力です。
約15.9帖のLDKは、大きな窓から差し込む光で開放感たっぷり。足元には床暖房を完備しており、寒い日も快適にお過ごしいただけます。リビング部分にも豊富な収納が設けられ、お部屋をすっきりと保てます。
本物件の主役の一つ、大人気アイランドキッチンは、カウンターダイニングとしても楽しめるⅡ型デザインが特徴。3口ガスコンロとグリルに加え、便利なビルドイン食器洗浄乾燥機を搭載し、家事の負担を軽減します。シンクは広く、下部には収納も豊富に確保されています。また、独立した冷蔵庫置き場とカップボードスペースも確保されています。
約5.0帖のベッドルームは、LDKと面していない配置で、リモートワークなど集中したい作業にも最適です。この部屋には、棚状収納と奥行きのあるウォークインクローゼットが完備され、衣類をたっぷり収納できます。もう一つの約4.3帖のベッドルームも、広々とした収納スペースとして活用可能です。
独立洗面台は、機能性とおしゃれなデザインを兼ね備えています。広々としたバスルームは、ゆったりと湯船に浸かれるサイズで、お湯張り機能と浴室乾燥機も搭載。トイレには温水洗浄便座を搭載しています。玄関には姿見が完備され、シューズボックスもしっかりとした収納量です。扉付きの洗濯機置き場もすっきりとした空間を演出します。
本物件最大の魅力は、その眺望です。 南側の窓からは湯島天神や上野・秋葉原方面を見渡すことができ、都心の躍動感を感じられます。そして、北側の窓からは、四季折々の表情を見せる不忍池を眼下に一望できる、代えがたい景色が手に入ります。
都心の利便性と、歴史ある湯島の落ち着き、そして豊かな眺望を享受できるこの住まいで、新しい生活を始めてみませんか。ペット飼育も可能(細則あり)な点も、嬉しいポイントです。
物件内観
今回は文京区湯島4丁目<湯島ハイタウンA棟>のご紹介となります。
本物件は新規リノヴェーション済!
14階、64.85㎡、2LDKとなります。

まずはキッチン部分よりご紹介させていただきます。
大人気アイランドキッチン!!!

3口ガスコンロ・グリル搭載。
下部には収納も豊富!

シンクも広く設計されております。

ビルドイン食器洗浄乾燥機搭載。


冷蔵庫置き場・カップボードはこちら!

玄関部分のご紹介となります。
姿見も完備!

シューズボックスはしっかりと収納量がございます。

独立洗面台はおしゃれなデザイン!

バスルームは広く、ゆったりと浸かっていただけます。

お湯張り機能・浴室乾燥機搭載!

トイレは温水洗浄便座搭載。

約4.3帖のベッドルーム。
広々とした収納としても使用可能!!!

扉付きの洗濯機置き場となっております。

約5.0帖のベッドルーム。
リビングとは面しておらずリモートワークの方にもおすすめ!

収納は棚状収納と奥行きのあるウォークインクローゼット完備!

北向きでして不忍池を一望いただけます!


LDKは約15.9帖!
窓が大きく開放感がございます。

リビング部分の収納も豊富!


本物件は収納が豊富!

モニター付きインターホン搭載。
加えてLD部分には床暖房搭載。


南側の眺望となり湯島天神、上野・秋葉原方面を見渡していただけます!
湯島ハイタウンA棟 14階
-
- 価格
- ご成約済み
-
- 管理費
- ー
-
- 修繕積立金
- ー
-
- 間取り/面積
- 2LDK/64.85㎡
-
- 築年月
- 1969年12月
-
- 交通
- 千代田線-湯島駅 徒歩2分大江戸線-上野御徒町駅 徒歩5分山手線-御徒町駅 徒歩7分

物件詳細
-
- 物件名
- 湯島ハイタウンA棟 14階
- 所在地
- 東京都文京区湯島4丁目6-11
-
- 交通
- 千代田線 - 湯島駅 徒歩2分大江戸線 - 上野御徒町駅 徒歩5分山手線 - 御徒町駅 徒歩7分
-
- 物件種別
- マンション
- 現況
- 成約
部屋情報
-
- 価格
- ご成約済み
-
- 管理費
- ー
- 修繕積立金
- ー
-
- 間取
- 2LDK
- 面積
- 64.85㎡
-
- 部屋階数
- 14階
- 方位
- 南
建築物情報
-
- 建物構造
- SRC
- 建物階数
- 16階階建
-
- 部屋階数
- 14階
- 学区
-
湯島小学校
本郷台中学校
-
- 設備・条件
- 2階以上,居住,独立洗面台,2人入居可,カウンターキッチン,ガスコンロ,エレベーター,ペット相談,W.INクローゼット,駐輪場,室内洗濯機置き場,バイク置き場,駐車場,ゴミ置き場,浴室乾燥機,バス・トイレ別,温水洗浄便座,バルコニー
-
- 物件番号
- c16092
- 取引態様
- 媒介
-
- 最終更新日
- 2025年12月01日
| 図面 | 価格 | 管理費 | 修繕積立金 | 方位 | 階層 | 間取り | 専有面積 | お気に入り |
|---|---|---|---|---|---|---|---|---|
![]() |
ご成約済み | ー | ー | 南 | 13階 | 3LDK | 77.54㎡ | |
![]() |
ご成約済み | ー | ー | 南 | 14階 | 2LDK | 64.85㎡ | |
![]() |
ご成約済み | ー | ー | 南 | 14階 | 2LDK | 64.85㎡ | |
![]() |
ご成約済み | ー | ー | 南 | 10階 | 2LDK | 77.54㎡ | |
![]() |
ご成約済み | ー | ー | 南 | 16階 | 3LDK | 77.45㎡ | |
![]() |
ご成約済み | ー | ー | 南 | 8階 | 2LDK | 79.33㎡ | |
![]() |
ご成約済み | ー | ー | - | 11階 | 3SLDK | 77.54㎡ | |
![]() |
ご成約済み | ー | ー | - | 11階 | 2LDK | 77.54㎡ | |
![]() |
ご成約済み | ー | ー | - | 6階 | 1LDK | 64.85㎡ |
-
ご成約済み /管理費: ー修繕積立金: ー
階数:13階
3LDK /77.54㎡ -
ご成約済み /管理費: ー修繕積立金: ー
階数:14階
2LDK /64.85㎡ -
ご成約済み /管理費: ー修繕積立金: ー
階数:14階
2LDK /64.85㎡ -
ご成約済み /管理費: ー修繕積立金: ー
階数:10階
2LDK /77.54㎡ -
ご成約済み /管理費: ー修繕積立金: ー
階数:16階
3LDK /77.45㎡ -
ご成約済み /管理費: ー修繕積立金: ー
階数:8階
2LDK /79.33㎡ -
ご成約済み /管理費: ー修繕積立金: ー
階数:11階
3SLDK /77.54㎡ -
ご成約済み /管理費: ー修繕積立金: ー
階数:11階
2LDK /77.54㎡ -
ご成約済み /管理費: ー修繕積立金: ー
階数:6階
1LDK /64.85㎡
-
全居室【W.I.C】完備の圧倒的収納力!南側から湯島天神!北側から旧岩崎庭園、上野恩賜公園が望めます!
ご成約済み
管理費等: ー
1969年12月 築
3LDK /77.54㎡
千代田線 - 湯島駅 徒歩2分 他2路線
- 売買
- 動画
- リモート内見
-
<新規リノベ>湯島天神・上野公園を望むヴィンテージ2LDK
ご成約済み
管理費等: ー
1969年12月 築
2LDK /64.85㎡
千代田線 - 湯島駅 徒歩2分 他2路線
- 売買
- 動画
- リモート内見
-
南向き!希少なアイランドキッチンでカフェの様なおしゃれな内装!!
ご成約済み
管理費等: ー
1969年12月 築
2LDK /64.85㎡
千代田線 - 湯島駅 徒歩2分 他2路線
- 売買
- 動画
- リモート内見
-
<新規リノベ>旧岩崎邸・湯島天神を一望のリビング20帖越え2LDK
ご成約済み
管理費等: ー
1969年12月 築
2LDK /77.54㎡
千代田線 - 湯島駅 徒歩2分 他2路線
- 売買
- 動画
- リモート内見
-
【現状渡し】最上階16階南向きの湯島天神を望む3LDK
ご成約済み
管理費等: ー
1969年12月 築
3LDK /77.45㎡
千代田線 - 湯島駅 徒歩2分 他2路線
- 売買
- リモート内見
-
旧岩崎邸庭園・湯島天満宮を望む80㎡2LDK
ご成約済み
管理費等: ー
1969年12月 築
2LDK /79.33㎡
千代田線 - 湯島駅 徒歩2分 他2路線
- 売買
-
【高層階】日当たり眺望良好!ワークスペース完備!WIC×2の3SLDKタイプ♪
ご成約済み
管理費等: ー
1969年12月 築
3SLDK /77.54㎡
千代田線 - 湯島駅 徒歩2分 他2路線
- 売買
- 動画
- リモート内見
-
湯島天神を望むリノベーション済の2LDKタイプのお部屋♪
ご成約済み
管理費等: ー
1969年12月 築
2LDK /77.54㎡
千代田線 - 湯島駅 徒歩2分 他2路線
- 売買
- 動画
- リモート内見
-
~趣のある和室での暮らし~南向き1LDKのご紹介です。
ご成約済み
管理費等: ー
1969年12月 築
1LDK /64.85㎡
千代田線 - 湯島駅 徒歩2分 他2路線
- 売買





















