売買
解放感のあるルーフバルコニーが魅力的!全居室窓あり!!
売買
解放感のあるルーフバルコニーが魅力的!全居室窓あり!!
ディアナコート文京千石 4階
-
18500万円/管理費:24,600円
3LDK/70.61㎡
修繕積立金 : 17,440円
築年月 : 2013年03月
-
- 学区
-
林町小学校
第十中学校
-
- 交通
- 三田線 - 千石駅 徒歩9分丸ノ内線 - 新大塚駅 徒歩11分
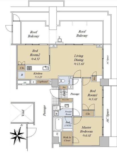
物件間取り

- エレベーター
- 駐輪場
- ゴミ置き場
- ペット相談
- バイク置き場
- 宅配ボックス
- 駐車場
- オートロック
住宅ローンシュミレーター
物件価格
18500万円
月々
0
円のご返済
金利
0.47%
頭金
0万円
ボーナス
0万円
返済期間
35年
※シュミレーションの結果はあくまで目安であり、将来の金利動向により実際のご返済がシュミレーション結果と異なる場合がございます。
実際に発生する月々のお支払い額は金融機関までご相談ください。
|
|
本郷三丁目駅前支店宮城 侑佑 取材記事 |
落ち着いた住環境に佇む「ディアナコート文京千石」より、4階・70.61㎡・3LDKタイプのご紹介です。
本住戸は南西角部屋につき、日当たり・通風ともに良好。天井高を活かした開放感あるリビング・ダイニングは、調光式ダウンライトが優しく照らす上質な空間です。
約11.6帖の広々としたLDKには、ディスポーザー・食器洗浄乾燥機を備えたガラストップコンロのシステムキッチンを採用。収納豊富で家事動線もスムーズです。主寝室にはウォークインクローゼットを設置し、すっきりとした生活空間を実現できます。
浴室にはオートバス機能や浴室乾燥機を完備し、洗面室には大型ミラーキャビネットや収納スペースも充実。TES式床暖房やエコカラット(調湿壁材)など、快適性にもこだわった設備が整っています。
さらに、約19㎡のルーフバルコニーが魅力。都心の眺望を楽しみながら、プライベートなひとときを過ごせます。ペット飼育も可能(細則あり)で、ご家族や愛犬との新しい暮らしにもおすすめの一邸です。
気になった方は是非お問い合わせくださいませ。
ディアナコート文京千石 4階
-
- 価格
- 18500万円
-
- 管理費
- 24,600円
-
- 修繕積立金
- 17,440円
-
- 間取り/面積
- 3LDK/70.61㎡
-
- 築年月
- 2013年03月
-
- 交通
- 三田線-千石駅 徒歩9分丸ノ内線-新大塚駅 徒歩11分

物件詳細
-
- 物件名
- ディアナコート文京千石 4階
- 所在地
- 東京都文京区千石3丁目18-9
-
- 交通
- 三田線 - 千石駅 徒歩9分丸ノ内線 - 新大塚駅 徒歩11分
-
- 物件種別
- マンション
- 現況
- 売出中(居住中)
部屋情報
-
- 価格
- 18500万円
-
- 管理費
- 24,600円
- 修繕積立金
- 17,440円
-
- 間取
- 3LDK
- 面積
- 70.61㎡
-
- 部屋階数
- 4階
- 方位
- 北西
建築物情報
-
- 建物構造
- RC
- 建物階数
- 5階建
-
- 部屋階数
- 4階
- 学区
-
林町小学校
第十中学校
-
- 設備・条件
- 2人入居可,2階以上,独立洗面台,居住,オートロック,カウンターキッチン,宅配ボックス,ペット相談,ガスコンロ,エレベーター,耐震構造,角部屋,W.INクローゼット,駐輪場,室内洗濯機置き場,追い焚き,駐車場,ゴミ置き場,浴室乾燥機,バス・トイレ別,温水洗浄便座,バルコニー
-
- 物件番号
- c16187
- 取引態様
- 媒介
-
- 最終更新日
- 2025年10月28日
| 図面 | 価格 | 管理費 | 修繕積立金 | 方位 | 階層 | 間取り | 専有面積 | お気に入り |
|---|---|---|---|---|---|---|---|---|
![]() |
18500万円 | 24,600円 | 17,440円 | 北西 | 4階 | 3LDK | 70.61㎡ | |
![]() |
ご成約済み | ー | ー | 北東 | 2階 | 2LDK | 56.40㎡ | |
![]() |
ご成約済み | ー | ー | - | 4階 | 3LDK | 72.24㎡ |




























