文京区不動産.com: 日本一詳しい文京区の賃貸・売買マンション情報

検索条件

  • 東京メトロ丸ノ内線

  • 東京メトロ千代田線

  • 東京メトロ南北線

  • 東京メトロ有楽町線

  • 東京メトロ東西線

  • 東京メトロ銀座線

  • 東京メトロ日比谷線

  • 東京メトロ副都心線

  • 都営大江戸線

  • 都営三田線

  • 都電荒川線

  • 都営浅草線

  • JR山手線

  • JR総武線

  • JR中央線

  • JR京浜東北・根岸線

  • 条件

  • 部屋位置

  • 建物設備

  • 室内設備

  • お求めの物件

賃貸

【新築】大きなカウンターキッチンが魅力の2LDK☆

動画サムネイル
動画サムネイル
賃貸

【新築】大きなカウンターキッチンが魅力の2LDK☆

ルフォンプログレ本郷三丁目 201

  • 27.6万円/管理費:15円

    2LDK/42.61㎡

    敷金/礼金 : 1ヶ月/なし

    築年月 : 2025年11月

  • 学区
    湯島小学校
    本郷台中学校
  • 交通
    大江戸線 - 本郷三丁目駅 徒歩4分
    丸ノ内線 - 本郷三丁目駅 徒歩6分
    千代田線 - 湯島駅 徒歩10分
    総武線 - 御茶ノ水駅 徒歩11分
    中央本線 - 御茶ノ水駅 徒歩11分
    丸ノ内線 - 御茶ノ水駅 徒歩11分
    中央本線 - 水道橋駅 徒歩13分
    三田線 - 水道橋駅 徒歩13分
    銀座線 - 末広町駅 徒歩15分

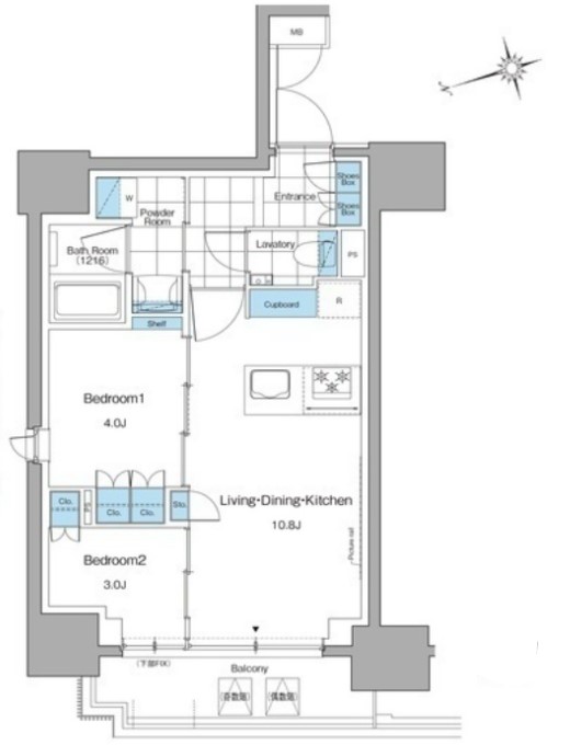
物件間取り

  • エレベーター
  • 駐輪場
  • ゴミ置き場
  • ペット相談
  • バイク置き場
  • 宅配ボックス
  • 駐車場
  • オートロック
本郷三丁目駅前支店

佐藤忠嘉 取材記事

 

明るく開放感のあるリビングダイニングは約10帖の広さを確保しており、大きめの家具もゆとりをもって配置可能です。バルコニーに面した設計のため採光性にも優れ、日中は自然光が心地よく差し込みます。各洋室は独立性の高い配置となっており、在宅ワークや寝室など用途に応じて使い分けがしやすい点も魅力です。

キッチンは使い勝手の良いシステムキッチンを採用しており、調理スペースもしっかり確保。収納も充実しているため、日々のお料理も快適に行えます。水回りはバス・トイレ別で、独立洗面台も備わっており、朝の身支度もスムーズ。浴室にはゆとりがあり、リラックスできる空間となっています。

さらに各居室にはクローゼットが設けられており、衣類や荷物をしっかり収納可能。室内は全体的に無駄のない設計で、機能性と快適性を兼ね備えた住み心地の良い空間に仕上がっています。

物件内観

早速お部屋の紹介に入ります。

新築ならではの清潔感と機能性が魅力の1室です。

 

 

 

 

 

 

 

 

 

 

玄関横には大きめシューズボックスが2列ございます。

おしゃれさんも大歓迎♪

 

 

 

 

 

 

 

 

 

 

 

 

 

 

廊下を抜けるとLDKです。

サイドに水回りがございます。

 

 

 

 

 

 

 

 

 

 

温水洗浄便座付のトイレです。

室内に洗面台付きなのが嬉しいポイントです☆

 

 

 

 

 

 

 

 

 

 

パウダールームに洗濯機置き場がございます。

収納もあります。タオル置き場に使えそうですね!

 

 

 

 

 

 

 

 

 

 

 

独立洗面台付きです。

朝の支度が楽になりそうです♪

 

 

 

 

 

 

 

 

追炊き機能、浴室乾燥機付きというハイグレード仕様のバスルームです。

 

 

 

 

 

 

 

 

 

 

TVモニター付きインターフォン完備です。

オートロックと併せて安心のセキュリティ♪

 

 

 

 

 

 

 

 

 

 

カウンタータイプのキッチンです。

 

 

 

 

 

 

 

 

 

 

3口ガスコンロとグリル付きです。

背面にもカウンターがあります。

 

 

 

 

 

 

 

 

 

 

キッチン横にも給湯リモコンがあります。

 

 

 

 

 

 

 

 

 

LDKは10.8帖と広々設計です。

 

 

 

 

 

 

 

 

 

 

洋室は4帖と3帖です。

ベッドルームとしては十分は広さ!

 

 

 

 

 

 

 

 

 

 

各部屋にクローゼットが付いているのがポイントです!

 

 

 

 

 

 

 

 

 

 

バルコニーです。

自然の風をお楽しみください。

 

ルフォンプログレ本郷三丁目 201

  • 賃料
    27.6万円
  • 管理費
    15円
  • 間取り/面積
    2LDK/42.61㎡
  • 敷金/礼金
    1ヶ月/なし
  • 築年月
    2025年11月
  • 交通
    大江戸線-本郷三丁目駅 徒歩4分
    丸ノ内線-本郷三丁目駅 徒歩6分
    千代田線-湯島駅 徒歩10分
    総武線-御茶ノ水駅 徒歩11分
    中央本線-御茶ノ水駅 徒歩11分
    丸ノ内線-御茶ノ水駅 徒歩11分
    中央本線-水道橋駅 徒歩13分
    三田線-水道橋駅 徒歩13分
    銀座線-末広町駅 徒歩15分

物件詳細

  • 物件名
    ルフォンプログレ本郷三丁目 201
    所在地
    東京都文京区本郷3丁目25-6
  • 交通
    大江戸線 - 本郷三丁目駅 徒歩4分
    丸ノ内線 - 本郷三丁目駅 徒歩6分
    千代田線 - 湯島駅 徒歩10分
    総武線 - 御茶ノ水駅 徒歩11分
    中央本線 - 御茶ノ水駅 徒歩11分
    丸ノ内線 - 御茶ノ水駅 徒歩11分
    中央本線 - 水道橋駅 徒歩13分
    三田線 - 水道橋駅 徒歩13分
    銀座線 - 末広町駅 徒歩15分
    物件種別
    マンション

部屋情報

  • 間取
    2LDK
    面積
    42.61㎡
  • 部屋階数
    2階
    部屋/区画番号
    2階
  • 状態
    募集中(空室)
    方位
    北西

費用詳細

  • 賃料
    27.6万円
    共益費・管理費
    15円
  • 敷金
    1ヶ月
    礼金
    なし
  • 更新料
    1ヶ月

諸費用

  • 保証会社
    レジデンシャルパートナーズ
    保証料
    ・初回保証料:総賃料の50% ・月額保証料:総賃料の1%
  • 保険料
    鍵交換
  • その他の費用

建築物情報

  • 建物構造
    RC
    建物階数
    14階建
  • 築年月
    2025年11月
    学区
    湯島小学校
    本郷台中学校
  • 設備・条件
    2人入居可,2階以上,独立洗面台,条件,居住,オートロック,法人契約相談,宅配ボックス,カウンターキッチン,部屋位置,建物設備,ペット相談,ガスコンロ,エレベーター,耐震構造,室内設備,事務所相談,角部屋,お求めの物件,駐輪場,バイク置き場,室内洗濯機置き場,駐車場,追い焚き,ゴミ置き場,浴室乾燥機,バス・トイレ別,温水洗浄便座,バルコニー
  • 取引態様
    媒介
    物件番号
    bk023701
  • 最終更新日
    2026年04月18日

賃貸物件一覧

成約済みも表示

ソート可

図面 賃貸 管理費 敷金 礼金 階層 間取り 専有面積 お気に入り
27.6万円 15円 1ヶ月 なし 2階 2LDK 42.61㎡
27.8万円 15,000円 1ヶ月 なし 6階 2LDK 42.61㎡
28.1万円 15,000円 1ヶ月 なし 12階 2LDK 42.34㎡
29万円 15,000円 1ヶ月 なし 14階 2LDK 42.61㎡
要問い合わせ 1ヶ月 なし 6階 1LDK 31.12㎡
28万円 15,000円 1ヶ月 なし 10階 2LDK 42.61㎡
要問い合わせ 1ヶ月 なし 7階 2LDK 42.34㎡
要問い合わせ 1ヶ月 なし 7階 1LDK 31.12㎡
要問い合わせ 1ヶ月 なし 7階 1LDK 31.37㎡

条件の似ている物件

検索条件

フリーワード検索
賃料 価格
間取り

間取りを選択

間取りを選択してください

駅を選択

駅を選択してください

  • 東京メトロ丸ノ内線

  • 東京メトロ千代田線

  • 東京メトロ南北線

  • 東京メトロ有楽町線

  • 東京メトロ東西線

  • 東京メトロ銀座線

  • 東京メトロ日比谷線

  • 東京メトロ副都心線

  • 都営大江戸線

  • 都営三田線

  • 都電荒川線

  • 都営浅草線

  • JR山手線

  • JR総武線

  • JR中央線

  • JR京浜東北・根岸線

駅徒歩
エリア/区

エリア/区を選択

エリアを選択してください

住所

住所を選択

住所を選択してください

小学校区

小学校区を選択

小学校区を選択してください

中学校区

中学校区を選択

中学校区を選択してください

築年数
条件・設備
適用して戻る

条件・設備を選択

条件・設備を選択してください

  • 条件

  • 部屋位置

  • 建物設備

  • 室内設備

  • お求めの物件

検索条件をリセットする