ジェイパーク文京白山

ジェイパーク文京白山
ジェイパーク文京白山 4階
- 
							
ご成約済み/管理費:ー
2LDK/57.11㎡
修繕積立金 : ー
築年月 : 2001年11月
 - 
							
- 学区
 - 
								指ヶ谷小学校								
第十中学校 
 - 
							
- 交通
 - - 白山駅 徒歩3分 - 本駒込駅 徒歩8分
 
 
物件間取り
- エレベーター
 - 駐輪場
 - ゴミ置き場
 - ペット相談
 - バイク置き場
 - 宅配ボックス
 - 駐車場
 - オートロック
 
| 
											 | 
										
											木山木山ベステックス 取材記事 | 
									

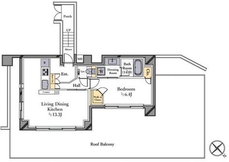
ジェイパーク文京白山の4階部分、57.11㎡の2LDKタイプをご紹介します。
LDKは約11.8帖、洋室は約6帖と約4.3帖からなる間取り。梁が比較的に少なく使いやすい間取りとなっております。
リビングダイニング部分には床暖房が完備されており、冬場でも足元から暖かく快適に過ごせます♪
キッチンは3口ガスコンロのシステムキッチンで、カウンターキッチンとなっております。
洋室のクローゼットはもちろん、小物入、玄関にはシューズクローゼット、トイレには吊戸棚、洗面室にはリネン庫など、各所に収納も備わっています
水まわりの設備も分譲ならではのハイグレード仕様!
節水仕様のトイレには温水洗浄機能付き。
浴室は1418サイズのゆとりあるユニットバスで、追焚機能・浴室乾燥機がしっかり完備されております。
分譲ならではのハイグレードな設備・仕様の数々が快適な暮らしをサポートします♪
是非お問い合わせください!
物件概要

築年月:2001年11月
構造:鉄筋コンクリート(RC)造 地上8階 地下1階
総戸数:51戸
用途地域:第一種住居地域
土地権利:所有権
交通面:都営三田線 白山駅 徒歩2分
価格:5,150万
間取り:2LDK
㎡数:57.11㎡
周辺環境
【ジェイパーク文京白山】の最寄り駅【白山駅】の周辺環境をご紹介いたします!

最寄り駅は都営三田線【白山駅】!【ジェイパーク文京白山】より徒歩2分となります。

白山駅近くには便利なスーパー【三徳白山店】や

ドラッグストアに【マツモトキヨシ 白山5丁目店】などがあり、

その隣にはもう一つのスーパー【コープ白山店】など生活に必要な環境が取り揃っております!

他にも文京区では希少な便利な100円ショップに【THE 100STORES】や

クリーニング店などもございますので、白山駅周辺は生活至便なエリアとなっております!

駅周辺にはもちろん、便利なコンビニもございますので、白山駅の周辺だけで
生活に必要なもののほとんどを揃えることができます!

徒歩10分ほど行くと【小石川植物公園】もございますのでリフレッシュしたい時に足を運んでみてはいかがでしょうか?
物件外観・共有部分

今回ご紹介の物件は生活環境良好な白山駅から徒歩2分!
総戸数51戸の高級分譲レジデンス【ジェイパーク文京白山】です!

正面玄関はスロープも完備された親切設計!
足元を取られることもございません!

駐車場も完備されておりますので、ご家族での遠出などもお楽しみ頂くことが可能です!
※要空き確認

物件は周辺には緑にも触れれる好立地!

裏手は高台となっており周辺には緑も茂っております!
ジェイパーク文京白山 4階
- 
							
- 価格
 - ご成約済み
 
 - 
							
- 管理費
 - ー
 
 - 
							
- 修繕積立金
 - ー
 
 - 
							
- 間取り/面積
 - 2LDK/57.11㎡
 
 - 
							
- 築年月
 - 2001年11月
 
 - 
							
- 交通
 - -白山駅 徒歩3分-本駒込駅 徒歩8分
 
 
物件詳細
- 
						
- 物件名
 - ジェイパーク文京白山 4階
 
- 所在地
 - 東京都文京区白山5丁目4-6
 
 - 
						
- 交通
 - - 白山駅 徒歩3分 - 本駒込駅 徒歩8分
 
 - 
						
- 物件種別
 - マンション
 
- 現況
 - 成約
 
 
部屋情報
- 
						
- 価格
 - ご成約済み
 
 - 
						
- 管理費
 - ー
 
- 修繕積立金
 - ー
 
 - 
						
- 間取
 - 2LDK
 
- 面積
 - 57.11㎡
 
 - 
						
- 部屋階数
 - 4階
 
- 方位
 
 
建築物情報
- 
						
- 建物構造
 - RC
 
- 建物階数
 - 8階建
 
 - 
						
- 部屋階数
 - 4階
 
- 学区
 - 
								指ヶ谷小学校								
第十中学校 
 - 
						
- 設備・条件
 - オートロック,宅配ボックス,ガスコンロ,エレベーター,耐震構造,駐輪場,室内洗濯機置き場,駐車場,ゴミ置き場,バス・トイレ別,温水洗浄便座,バルコニー
 
 - 
						
- 物件番号
 - c10731
 
- 取引態様
 
 - 
						
- 最終更新日
 - 2019年12月27日
 
 
| 図面 | 価格 | 管理費 | 修繕積立金 | 方位 | 階層 | 間取り | 専有面積 | お気に入り | 
|---|---|---|---|---|---|---|---|---|
![]()  | 
									12800万円 | 10,470円 | 17,920円 | 北 | 8階 | 1LDK | 51.09㎡ | |
![]()  | 
									11000万円 | 12,090円 | 20,690円 | 南東 | 6階 | 1SLDK | 58.96㎡ | |
![]()  | 
									ご成約済み | ー | ー | 南西 | 3階 | 2LDK | 67.57㎡ | |
![]()  | 
									ご成約済み | ー | ー | 南東 | 6階 | 1LDK | 58.96㎡ | |
![]()  | 
									ご成約済み | ー | ー | - | 1階 | 1SLDK | 58.87㎡ | |
![]()  | 
									ご成約済み | ー | ー | - | 2階 | 2LDK | 56.80㎡ | |
| ご成約済み | ー | ー | - | 4階 | 2LDK | 57.11㎡ | 
- 
								
									
12800 万円 /管理費: 10,470円修繕積立金: 17,920円
階数:8階
1LDK /51.09㎡ - 
								
									
11000 万円 /管理費: 12,090円修繕積立金: 20,690円
階数:6階
1SLDK /58.96㎡ - 
								
									
ご成約済み /管理費: ー修繕積立金: ー
階数:3階
2LDK /67.57㎡ - 
								
									
ご成約済み /管理費: ー修繕積立金: ー
階数:6階
1LDK /58.96㎡ - 
								
									
ご成約済み /管理費: ー修繕積立金: ー
階数:1階
1SLDK /58.87㎡ - 
								
									
ご成約済み /管理費: ー修繕積立金: ー
階数:2階
2LDK /56.80㎡ - 
								
									ご成約済み /管理費: ー修繕積立金: ー
階数:4階
2LDK /57.11㎡ 
- 
							
								
部屋よりも広いルーフバルコニー!?贅沢すぎる1LDK
12800万円
管理費等: 28,390円
2001年11月 築
1LDK /51.09㎡
三田線 - 白山駅 徒歩3分 他1路線
- 売買
 - 動画
 - リモート内見
 
 - 
							
								
南東角部屋で陽当たり・眺望良好!書斎としても使えるサービスルーム有!
11000万円
管理費等: 32,780円
2001年11月 築
1SLDK /58.96㎡
三田線 - 白山駅 徒歩3分 他1路線
- 売買
 - 動画
 - リモート内見
 
 - 
							
								
<オーナーチェンジ>60㎡超えの2LDK!駅近で交通利便性も高いです◎
ご成約済み
管理費等: ー
2001年11月 築
2LDK /67.57㎡
三田線 - 白山駅 徒歩3分 他1路線
- 売買
 
 - 
							
								
角住戸2面採光南東向きバルコニー58.96㎡のゆとりある1LDK
ご成約済み
管理費等: ー
2001年11月 築
1LDK /58.96㎡
三田線 - 白山駅 徒歩3分 他1路線
- 売買
 
 - 
							
								
【オーナーチェンジ】南向きテラス付きの1SLDKタイプ♪
ご成約済み
管理費等: ー
2001年11月 築
1SLDK /58.87㎡
三田線 - 白山駅 徒歩3分 他1路線
- 売買
 
 - 
							
								
駅ちかペット飼育可能!新規リノベハイグレード仕様な2LDK♪
ご成約済み
管理費等: ー
2001年11月 築
2LDK /56.80㎡
三田線 - 白山駅 徒歩3分 他1路線
- 売買
 - 動画
 - リモート内見
 
 - 
							
								
買い物至便な白山駅から徒歩2分!ハイグレードな2LDK!
ご成約済み
管理費等: ー
2001年11月 築
2LDK /57.11㎡
三田線 - 白山駅 徒歩3分 他1路線
- 売買
 
 












					
					