フェニックス本郷東大前

フェニックス本郷東大前
フェニックス本郷東大前 505
-
要問い合わせ(※)/管理費:ー
1K/23.98㎡
敷金/礼金 : 1ヶ月/1ヶ月
築年月 : 2009年12月
-
- 学区
-
湯島小学校
本郷台中学校
-
- 交通
- 千代田線 - 湯島駅 徒歩7分丸ノ内線 - 本郷三丁目駅 徒歩8分大江戸線 - 本郷三丁目駅 徒歩8分
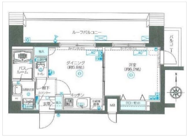
物件間取り

- エレベーター
- 駐輪場
- ゴミ置き場
- ペット相談
- バイク置き場
- 宅配ボックス
- 駐車場
- オートロック
|
|
本郷三丁目駅前支店宮城 侑佑 取材記事 |
2009年築湯島4丁目の閑静な住宅街に位置する物件となっております。
最寄り駅は、湯島駅徒歩7分で駅まで駅周辺には、業務スーパーやドン・キホーテがあるので、お出かけついでにお買い物ができます。
また、観光地としても人気のアメ横や上野恩賜公園、上野動物園も近く休日も楽しめるエリアとなっております。
耐火・耐震・防音に優れたRC造で人気設備の宅配ボックスや敷地内ゴミ置き場、オートロック・エレベーターも完備されたかなり好条件の建物となっております。
お部屋は高層階の南向きとなっているので、日当たりが良好となっております。
洋室は、約8.0帖と広々とした空間で2口ガスコンロキッチンと洋室が区切られている1Kタイプとなっております。
周辺環境



湯島駅付近には、お買い物には便利なドン・キホーテがあります。
お出かけついでに買い物ができます。

上野方面には、業務スーパーもございます。

上野恩賜公園も近く散歩コースとしても利用できます。

スーパーマーケットも徒歩圏内でアクセスできます。

警察署も近くにあるので治安面も安心です。

物件から徒歩1分で文京総合体育館があり、様々な球技や水泳が楽しめスポーツジムがあるので運動したい方には、おすすめです。
文京区在学・在勤・在住の方は利用可能となっております。

湯島天神は学問の神として有名で春ごろには数多くの絵馬が奉納されております。

物件前には、文京区教育センターもございます。
物件外観・共用部


文京区湯島4丁目の7階建ての建物になります。

敷地内には、入居者専用のゴミ置き場もございます。

物件裏手・エントランス横に駐輪場がございます。

エントランス前になります。
全面道路から少し後ろに下がっております。


エントランスには、オートロックがついているのでセキュリティ対策万全です。

宅配ボックスがあるので不在時でも荷物の受け取りが可能となっております。

オートロックを抜けたエントランスロビーとなっております。

エレベーター付きの物件となっております。

お部屋前の共用廊下になっております。
ホテルライクな内廊下です。
物件内観

玄関先も広く、重い荷物を持っていても楽に入室できます。


玄関先には、シューズボックスが賀2箇所あり棚の高さ調説や取り外しも可能なので、1つは収納棚としても使えそうですね。
室内洗濯機置き場には、扉がついております。

バストイレ別でトイレは、完全セパレートとなっております。


2点ユニットバスのお風呂にハ、浴室乾燥・暖房・涼風機能がついております。


鏡付きの洗面台も完備しております。


2口ガスコンロキッチンで出お料理も捗りそうですね。

キッチン横には、冷蔵庫置き場もございます。


洋室は、約8.0帖の広々とした空間となっております。

モニター付きインターホンがあるので、訪問者の顔が確認できます。

洋室には、クローゼットもございます。

エアコンがあるので季節問わず快適な生活がおくれます。

バルコニーでの物干しも可能となっております。

バルコニーからの眺望になります。
南向きで目の前の大きな建物もないので、日当たりにも期待できます。
フェニックス本郷東大前 505
-
- 賃料
- 要問い合わせ(※)
-
- 管理費
- ー
-
- 間取り/面積
- 1K/23.98㎡
-
- 敷金/礼金
- 1ヶ月/1ヶ月
-
- 築年月
- 2009年12月
-
- 交通
- 千代田線-湯島駅 徒歩7分丸ノ内線-本郷三丁目駅 徒歩8分大江戸線-本郷三丁目駅 徒歩8分

物件詳細
-
- 物件名
- フェニックス本郷東大前 505
- 所在地
- 東京都文京区湯島4丁目10-4
-
- 交通
- 千代田線 - 湯島駅 徒歩7分丸ノ内線 - 本郷三丁目駅 徒歩8分大江戸線 - 本郷三丁目駅 徒歩8分
- 物件種別
- マンション
部屋情報
-
- 間取
- 1K
- 面積
- 23.98㎡
-
- 部屋階数
- 5階
- 部屋/区画番号
- 505
-
- 状態
- 成約
- 方位
- 選択なし
費用詳細
-
- 賃料
- 要問い合わせ(※)
- 共益費・管理費
- 7,000円
-
- 敷金
- 1ヶ月
- 礼金
- 1ヶ月
-
- 更新料
- ー
諸費用
-
- 保証会社
- 保証料
-
- 保険料
- 鍵交換
-
- その他の費用
建築物情報
-
- 建物構造
- RC
- 建物階数
- 7階建
-
- 築年月
- 2009年12月
- 学区
-
湯島小学校
本郷台中学校
-
- 設備・条件
- 居住,オートロック,宅配ボックス,法人契約相談,ガスコンロ,エレベーター,耐震構造,駐輪場,室内洗濯機置き場,ゴミ置き場,浴室乾燥機,バス・トイレ別,バルコニー
-
- 取引態様
- 物件番号
- bk020335
-
- 最終更新日
- 2024年04月20日
| 図面 | 賃貸 | 管理費 | 敷金 | 礼金 | 階層 | 間取り | 専有面積 | お気に入り |
|---|---|---|---|---|---|---|---|---|
![]() |
要問い合わせ | ー | 1ヶ月 | 1ヶ月 | 7階 | 1DK | 33.06㎡ | |
![]() |
要問い合わせ | ー | 1ヶ月 | 1ヶ月 | 2階 | 1K | 23.96㎡ | |
![]() |
要問い合わせ | ー | 1ヶ月 | 1ヶ月 | 5階 | 1K | 23.96㎡ | |
![]() |
要問い合わせ | ー | 1ヶ月 | 1ヶ月 | 4階 | 1K | 23.98㎡ | |
![]() |
要問い合わせ | ー | 1ヶ月 | 1ヶ月 | 5階 | 1K | 23.98㎡ | |
![]() |
要問い合わせ | ー | 1ヶ月 | 1ヶ月 | 1階 | 1K | 23.78㎡ | |
|
要問い合わせ | ー | 1ヶ月 | 1ヶ月 | 6階 | 1K | 23.92㎡ | |
![]() |
要問い合わせ | ー | 1ヶ月 | 1ヶ月 | 2階 | 1LDK | 38.15㎡ | |
![]() |
要問い合わせ | ー | 1ヶ月 | 1ヶ月 | 2階 | 1K | 23.96㎡ |
-
要問い合わせ/管理費: ー敷金: 1ヶ月 / 礼金: 1ヶ月
階数:7階
1DK /33.06㎡ -
要問い合わせ/管理費: ー敷金: 1ヶ月 / 礼金: 1ヶ月
階数:2階
1K /23.96㎡ -
要問い合わせ/管理費: ー敷金: 1ヶ月 / 礼金: 1ヶ月
階数:5階
1K /23.96㎡ -
要問い合わせ/管理費: ー敷金: 1ヶ月 / 礼金: 1ヶ月
階数:4階
1K /23.98㎡ -
要問い合わせ/管理費: ー敷金: 1ヶ月 / 礼金: 1ヶ月
階数:5階
1K /23.98㎡ -
要問い合わせ/管理費: ー敷金: 1ヶ月 / 礼金: 1ヶ月
階数:1階
1K /23.78㎡ -
要問い合わせ/管理費: ー敷金: 1ヶ月 / 礼金: 1ヶ月
階数:6階
1K /23.92㎡ -
要問い合わせ/管理費: ー敷金: 1ヶ月 / 礼金: 1ヶ月
階数:2階
1LDK /38.15㎡ -
要問い合わせ/管理費: ー敷金: 1ヶ月 / 礼金: 1ヶ月
階数:2階
1K /23.96㎡
-
東大すぐそば!ペット飼育可能な分譲賃貸マンション♪
要問い合わせ
管理費: ー
2009年12月 築
1DK /33.06㎡
千代田線 - 湯島駅 徒歩7分 他2路線
- 賃貸
- 動画
- リモート内見
-
東大病院関係者さんに人気の1K、出ました!
要問い合わせ
管理費: ー
2009年12月 築
1K /23.96㎡
千代田線 - 湯島駅 徒歩7分 他2路線
- 賃貸
- 動画
- リモート内見
-
南向きの1K!眺望良好♪
要問い合わせ
管理費: ー
2009年12月 築
1K /23.96㎡
千代田線 - 湯島駅 徒歩7分 他2路線
- 賃貸
- 動画
- リモート内見
-
東大病院関係者さんに人気の1K、出ました!
要問い合わせ
管理費: ー
2009年12月 築
1K /23.98㎡
千代田線 - 湯島駅 徒歩7分 他2路線
- 賃貸
- 動画
- リモート内見
-
閑静な住宅地!5階南向き・洋室約8帖の広々とした空間!2口ガスコンロの1Kタイプ!
要問い合わせ
管理費: ー
2009年12月 築
1K /23.98㎡
千代田線 - 湯島駅 徒歩7分 他2路線
- 賃貸
- 動画
- リモート内見
-
広々居室と充実設備♪
要問い合わせ
管理費: ー
2009年12月 築
1K /23.78㎡
千代田線 - 湯島駅 徒歩7分 他2路線
- 賃貸
- 動画
- リモート内見
-
眺望良好♪希少なペット可、分譲賃貸♪
要問い合わせ
管理費: ー
2009年12月 築
1K /23.92㎡
千代田線 - 湯島駅 徒歩7分 他2路線
- 賃貸
- 動画
- リモート内見
-
東大すぐそば!ペット飼育可能な分譲賃貸マンション♪
要問い合わせ
管理費: ー
2009年12月 築
1LDK /38.15㎡
千代田線 - 湯島駅 徒歩7分 他2路線
- 賃貸
- 動画
- リモート内見
-
旧岩崎邸庭園近くの静かな住宅街!単身向け1K!
要問い合わせ
管理費: ー
2009年12月 築
1K /23.96㎡
千代田線 - 湯島駅 徒歩7分 他2路線
- 賃貸
- 動画



























