文京区不動産.com: 日本一詳しい文京区の賃貸・売買マンション情報

検索条件

  • 東京メトロ丸ノ内線

  • 東京メトロ千代田線

  • 東京メトロ南北線

  • 東京メトロ有楽町線

  • 東京メトロ東西線

  • 東京メトロ銀座線

  • 東京メトロ日比谷線

  • 東京メトロ副都心線

  • 都営大江戸線

  • 都営三田線

  • 都電荒川線

  • 都営浅草線

  • JR山手線

  • JR総武線

  • JR中央線

  • JR京浜東北・根岸線

  • 条件

  • 部屋位置

  • 建物設備

  • 室内設備

  • お求めの物件

売買

谷中5丁目売地(67.56)

売買

谷中5丁目売地(67.56)

谷中5丁目売地(67.56)B区画

  • ご成約済み/管理費:ー

    その他/67.56㎡

    修繕積立金 : ー

    築年月 : 月

  • 学区
  • 交通
    千代田線 - 千駄木駅 徒歩4分

物件間取り

千駄木駅徒歩4分の売地です。

建築条件などございません。
谷中5丁目の閑静な住宅街の売地のご紹介です。

今回ご紹介の売地は全4区画のうちB区画になります。

約20.43坪(67.56㎡)となっております。

東京メトロ千代田線【千駄木】駅徒歩4分

JR山手線【日暮里】駅徒歩10分。

 

【法令制限】
都市計画:市街化区域
用途地域:第一種住居専用地域
建ぺい率:60%   容積率:160%
防火地域:準防火地域
接道状況:南側 4.0m 私道

権利:所有権

【引渡し】
現況:更地   引渡し:即

土地面積:67.56㎡ (約20.43坪)

 

建築条件などございませんので、お好きなハウスメーカーで建築可能です。

 

千駄木駅徒歩4分!閑静な住宅街です。

最寄り駅の千駄木駅は、東京メトロ千代田線になります。

徒歩4分程の距離にございます。大手町まで7分程の乗車時間になります。

 

駅周辺には都市銀行やサンマルクカフェもございます。

 

徒歩9分ほどにある【須藤公園】は江戸時代の加賀藩(前田家)にゆかりのあるお屋敷跡です。昭和初期に実業家の須藤吉左衛門さんが東京都へ公園用地として寄付された庭園を生かした造りになっています。

公園内には滝や池もあり池の周りには藤棚になっておりますので、春には香り豊かに花が咲きます!

 

 そして千駄木といえば【谷根千】と呼ばれ人気の高い下町情緒の残る商店街や街並みが有名です。

休日には多くの方が買い物や散策に訪れます。ここ数年、新たな商店も出店されており文京区のなかでも注目のスポットです。

 

もうひとつの最寄り駅の西日暮里駅は徒歩12分ほどの距離がございますがJR山手線も利用可能!

千代田線で大手町駅まで10分!霞ヶ関駅も15分!赤坂駅も19分と都心へ好アクセス!!

 

最寄りのスーパー【まいばすけっと】も徒歩4分とお買いものにも便利な立地です。

 

 

 

南側通路の為日当たり良好の売地です!

旗竿地になります。

今回ご紹介の売地は全4区画の内の【D区画】(南東側)になります

道路側からの写真です。

接道幅は約2.5mございます。旗竿状の敷地で南側が隣地の通路になっておりますので日当たりは良好になるかと思います。

20.43坪で、周辺の住居専用エリアになりますので戸建てが多くなっております。

 

敷地北西側からの写真です。奥行きは約14mあり旗竿地となっております。

 

敷地北東側からの写真です。南側は隣地の通路となっており日当たりも確保されます。

 

 

前面道路は舗装道で私道約4.0mになっております。

谷中の住宅街にございますので静かな環境です。

 

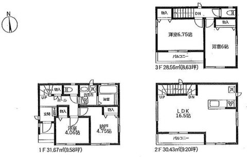
【参考プランのご紹介】

建物面積:90.66㎡(27.41坪)

3階建てのプランです。

1階には約4.06帖の洋室と4.75帖の洋室2部屋がございます。各居室に収納スペースも確保されておりトイレやパウダールームや洗濯機置場、バスルームなど水回りも1階にございます。

2階には約16.5帖のリビング・ダイニングキッチンがございます。カウンター式のシステムキッチン!南側と東側・西側に採光面が確保されており明るいリビングになっております。

3階には6.75帖と6.0帖の洋室が2部屋がございます。

トイレも完備されておりますので不要な上り下りの軽減が可能です。

 

現況は更地になっております。建築条件などもございませんのでお好きなハウスメーカーにて建築が可能です。

 

現地周辺のご案内もいつでも可能ですのでお気軽にお問合せ下さい。

 

 

 

谷中5丁目売地(67.56)B区画

  • 価格
    ご成約済み
  • 管理費
  • 修繕積立金
  • 間取り/面積
    その他/67.56㎡
  • 築年月
  • 交通
    千代田線-千駄木駅 徒歩4分

物件詳細

  • 物件名
    谷中5丁目売地(67.56)B区画
    所在地
    東京都台東区谷中5丁目
  • 交通
    千代田線 - 千駄木駅 徒歩4分
  • 物件種別
    土地
    現況
    成約

部屋情報

  • 価格
    ご成約済み
  • 管理費
    修繕積立金
  • 間取
    その他
    面積
    67.56㎡
  • 部屋階数
    方位

建築物情報

  • 建物構造
    木造
    建物階数
    階階建
  • 部屋階数
    B区画
    学区
  • 設備・条件
  • 物件番号
    c09561
    取引態様
  • 最終更新日
    2018年11月26日

検索条件

フリーワード検索
賃料 価格
間取り

間取りを選択

間取りを選択してください

駅を選択

駅を選択してください

  • 東京メトロ丸ノ内線

  • 東京メトロ千代田線

  • 東京メトロ南北線

  • 東京メトロ有楽町線

  • 東京メトロ東西線

  • 東京メトロ銀座線

  • 東京メトロ日比谷線

  • 東京メトロ副都心線

  • 都営大江戸線

  • 都営三田線

  • 都電荒川線

  • 都営浅草線

  • JR山手線

  • JR総武線

  • JR中央線

  • JR京浜東北・根岸線

駅徒歩
エリア/区

エリア/区を選択

エリアを選択してください

住所

住所を選択

住所を選択してください

小学校区

小学校区を選択

小学校区を選択してください

中学校区

中学校区を選択

中学校区を選択してください

築年数
条件・設備
適用して戻る

条件・設備を選択

条件・設備を選択してください

  • 条件

  • 部屋位置

  • 建物設備

  • 室内設備

  • お求めの物件

検索条件をリセットする