〈オーナーチェンジ〉居室は約12帖の広々空間♪人気条件が整ったお部屋!

〈オーナーチェンジ〉居室は約12帖の広々空間♪人気条件が整ったお部屋!
小石川Jフラッツ 3階
-
3610万円/管理費:12,023円
1R/38.17㎡
修繕積立金 : 7,634円
築年月 : 1991年02月
-
- 学区
-
金富小学校
茗台中学校
-
- 交通
- 丸ノ内線 - 茗荷谷駅 徒歩11分丸ノ内線 - 後楽園駅 徒歩13分南北線 - 後楽園駅 徒歩13分大江戸線 - 春日駅 徒歩13分三田線 - 春日駅 徒歩13分
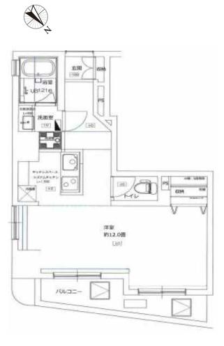
物件間取り

- エレベーター
- 駐輪場
- ゴミ置き場
- ペット相談
- バイク置き場
- 宅配ボックス
- 駐車場
- オートロック
住宅ローンシュミレーター
物件価格
3610万円
月々
0
円のご返済
金利
0.47%
頭金
0万円
ボーナス
0万円
返済期間
35年
※シュミレーションの結果はあくまで目安であり、将来の金利動向により実際のご返済がシュミレーション結果と異なる場合がございます。
実際に発生する月々のお支払い額は金融機関までご相談ください。
|
|
本郷三丁目駅前支店宮城 侑佑 取材記事 |
東京都文京区春日2丁目に位置する分譲マンション【小石川Jフラッツ】より、
3階部分・1Rタイプのオーナーチェンジ住戸をご紹介!
居室は約12帖と単身用にしては広々とした空間で家具家電のレイアウトのしやすくなっております。また二面採光で窓も3つあり風通しにも期待ができます。
キッチンスペースは少し奥まっているので、お料理の匂いが充満する心配もございません。また2口コンロで調理スペース・収納スペースも十分に確保されており、冷蔵庫・電子レンジもキッチンスペースにおけるので、効率的にお料理を進める事ができます。
バストイレ別で独立洗面台と人気設備も整っております。
・現況:賃貸中
・想定利回り:4.15%
*オーナーチェンジ物件(投資用)です。
*年間収入(満室想定)は公租公課・その他必要経費を控除する前の金額であり、現在の賃料または周辺の家賃相場から算出したものです。
*この収入は将来に渡り保証されるものではありません。
*本物件は賃貸中の為、居住することは出来ません。
小石川Jフラッツ 3階
-
- 価格
- 3610万円
-
- 管理費
- 12,023円
-
- 修繕積立金
- 7,634円
-
- 間取り/面積
- 1R/38.17㎡
-
- 築年月
- 1991年02月
-
- 交通
- 丸ノ内線-茗荷谷駅 徒歩11分丸ノ内線-後楽園駅 徒歩13分南北線-後楽園駅 徒歩13分大江戸線-春日駅 徒歩13分三田線-春日駅 徒歩13分

物件詳細
-
- 物件名
- 小石川Jフラッツ 3階
- 所在地
- 東京都文京区春日2丁目14-8
-
- 交通
- 丸ノ内線 - 茗荷谷駅 徒歩11分丸ノ内線 - 後楽園駅 徒歩13分南北線 - 後楽園駅 徒歩13分大江戸線 - 春日駅 徒歩13分三田線 - 春日駅 徒歩13分
-
- 物件種別
- マンション
- 現況
- 売出中(賃貸中)
部屋情報
-
- 価格
- 3610万円
-
- 管理費
- 12,023円
- 修繕積立金
- 7,634円
-
- 間取
- 1R
- 面積
- 38.17㎡
-
- 部屋階数
- 3階
- 方位
- 北東
建築物情報
-
- 建物構造
- SRC
- 建物階数
- 10階建
-
- 部屋階数
- 3階
- 学区
-
金富小学校
茗台中学校
-
- 設備・条件
- 独立洗面台,オートロック,2階以上,宅配ボックス,ガスコンロ,投資用,エレベーター,角部屋,耐震構造,駐輪場,室内洗濯機置き場,駐車場,ゴミ置き場,バス・トイレ別,温水洗浄便座,バルコニー
-
- 物件番号
- c16153
- 取引態様
- 媒介
-
- 最終更新日
- 2025年10月18日
| 図面 | 価格 | 管理費 | 修繕積立金 | 方位 | 階層 | 間取り | 専有面積 | お気に入り |
|---|---|---|---|---|---|---|---|---|
![]() |
3610万円 | 12,023円 | 7,634円 | 北東 | 3階 | 1R | 38.17㎡ | |
![]() |
ご成約済み | ー | ー | 選択なし | 2階 | 1R | 38.17㎡ | |
![]() |
ご成約済み | ー | ー | 南西 | 2階 | 1LDK | 46.21㎡ |
-
〈オーナーチェンジ〉居室は約12帖の広々空間♪人気条件が整ったお部屋!
3610万円
管理費等: 19,657円
1991年02月 築
1R /38.17㎡
丸ノ内線 - 茗荷谷駅 徒歩11分 他4路線
- 売買
-
〈オーナーチェンジ〉2021年10月室内フルリノベーション工事済!
ご成約済み
管理費等: ー
1991年02月 築
1R /38.17㎡
丸ノ内線 - 茗荷谷駅 徒歩11分 他4路線
- 売買
-
2面バルコニー3面採光・開放感を感じるフルリノベーション1LDK
ご成約済み
管理費等: ー
1991年02月 築
1LDK /46.21㎡
丸ノ内線 - 茗荷谷駅 徒歩11分 他4路線
- 売買
- 動画
- リモート内見
















